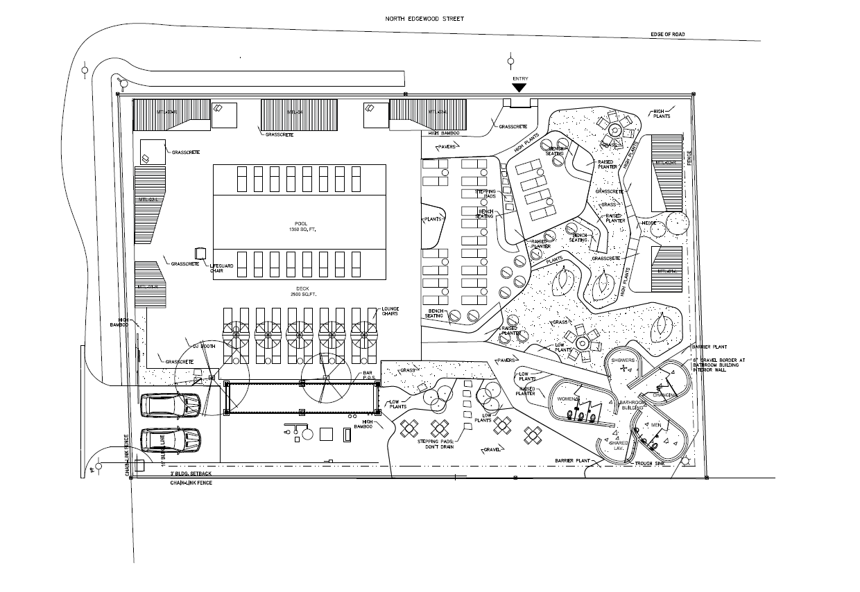
Houston, TX
Completed 2019
Design Firm: gin design group
Unpolished, upbeat and unpredictable.
El Segundo is off the beaten path and sits well in its isolation against the industrial backdrop at the edge of the city as an urban oasis.
Inspired by Roberto Burle Marx's work, the vibe is reminiscent of Rio in the '70s and embraces the Southern Hemisphere's playfulness. Design elements include lush vegetation, rustic wood and stone, desaturated orange tones, and shipping containers converted into cabanas.





